Villa Senderos Serenos – Espacio, elegancia y naturaleza en una casa de madera de gran tamaño
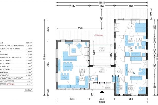
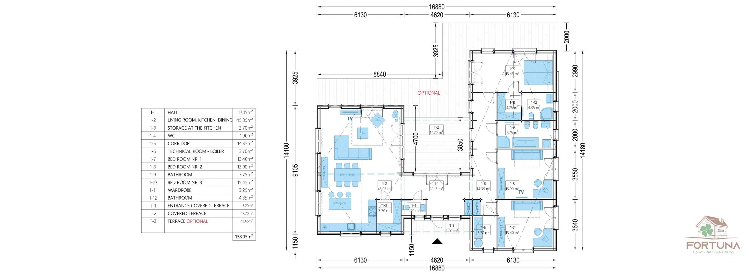
La Villa Senderos Serenos es una vivienda de madera pensada para quienes buscan amplitud, confort y una conexión especial con la naturaleza. Con 139 m² de superficie total, esta casa ofrece una distribución ideal para vivir todo el año o disfrutarla como segunda residencia en entornos naturales.
El modelo cuenta con 3 habitaciones y 3 cuartos de baño, además de un agradable porche exterior que amplía el espacio habitable y permite disfrutar del aire libre en cualquier época del año. Sus cristaleras amplias aportan gran luminosidad al interior y crean una sensación de continuidad entre el interior de la vivienda y el entorno.
Esta vivienda está fabricada con madera de pino y abeto de madera báltica, conocida por su resistencia, durabilidad y excelentes propiedades térmicas. La versión estándar incluye paredes de 44 mm con revestimiento exterior y aislante sintético, ofreciendo un buen rendimiento térmico y un acabado moderno.
También está disponible una versión superior con estructura de 66 mm + revestimiento, que cumple con el CTE e incluye aislamiento en paredes, ideal para quienes buscan un mayor nivel de eficiencia energética y confort en cualquier clima.
Características principales
-
Superficie total: 139 m²
-
3 habitaciones
-
3 cuartos de baño
-
Porche exterior
-
Madera de pino y abeto báltico
-
Grosor estándar: 44 mm + revestimiento con aislante sintético
-
Opción: 66 mm + revestimiento (cumple CTE con aislamiento)
-
Puertas y ventanas incluidas con cerraduras
-
Transporte incluido en el precio
-
Tornillería básica incluida
-
IVA incluido
Precios
-
44 mm + revestimiento con aislante: 66.390 €
-
66 mm + revestimiento (cumple CTE): 80.890 €
Costes aproximados de instalación
El montaje de la estructura de madera de esta vivienda tiene un coste aproximado de 12.000 €.
Otros trabajos habituales que suelen realizar los clientes son:
-
Fontanería: aprox. 4.500 €
-
Electricidad: aprox. 4.500 €
-
Base de cemento: aprox. 12.000 €
-
Tejado con panel sándwich: aprox. 17.500 €
(Los precios de instalación pueden variar dependiendo del terreno, ubicación y características del proyecto.)
Contacto
Si deseas más información sobre este modelo o recibir un presupuesto personalizado, puedes contactar con nosotros:
📞 Teléfono: 689 450 354
📧 Email: info@fortunacasasprefabricadas.com
🌐 Web: www.fortunacasasprefabricadas.com
En Fortuna Casas Prefabricadas trabajamos con viviendas de madera de calidad nórdica y realizamos envíos a toda España. También ofrecemos adaptaciones de modelos y proyectos personalizados según las necesidades de cada cliente.
Especificaciones:
- Superficie: 160 m²
- Altura mínima de mamparas: 249,75 cm
- Altura máxima de mamparas: 384,75 cm
- Materiales: Pino Nórdico Natural Certificado
- Tablas para techos: 19-20 mm de espesor
- Piso: 19-20 mm de espesor, lengüeta ranurada (suministrado)
- Paredes: 44 mm + revestimiento
- Tratamiento de madera: Disponible como opción
- Inclinación del techo: 25,3°
- Superficie habitable: 138,85 m²
- Número de habitaciones: 12
- Cubierta de techo: Disponible como opción
- Dimensiones exteriores (ancho x profundidad): 1688 cm x 1418 cm
La Villa Senderos Serenos es un lugar donde el espacio y la tranquilidad se fusionan en armonía. Aquí, podrás crear recuerdos invaluables y disfrutar de la vida en su forma más plena. Cada detalle de esta villa está diseñado para proporcionarte una experiencia lujosa y relajante mientras te conectas con la belleza natural que te rodea.















Deja tu opinión a Villa Senderos Serenos